Vilă de vânzare în Rojales 884.450 € (ROJA0121)

Vila de lux in Ciudad Quesada

884.450 €
Ref. ROJA0121
Rojales, Alicante Ver mapa

Caracteristici de bază

m<sup>2</sup> de teren
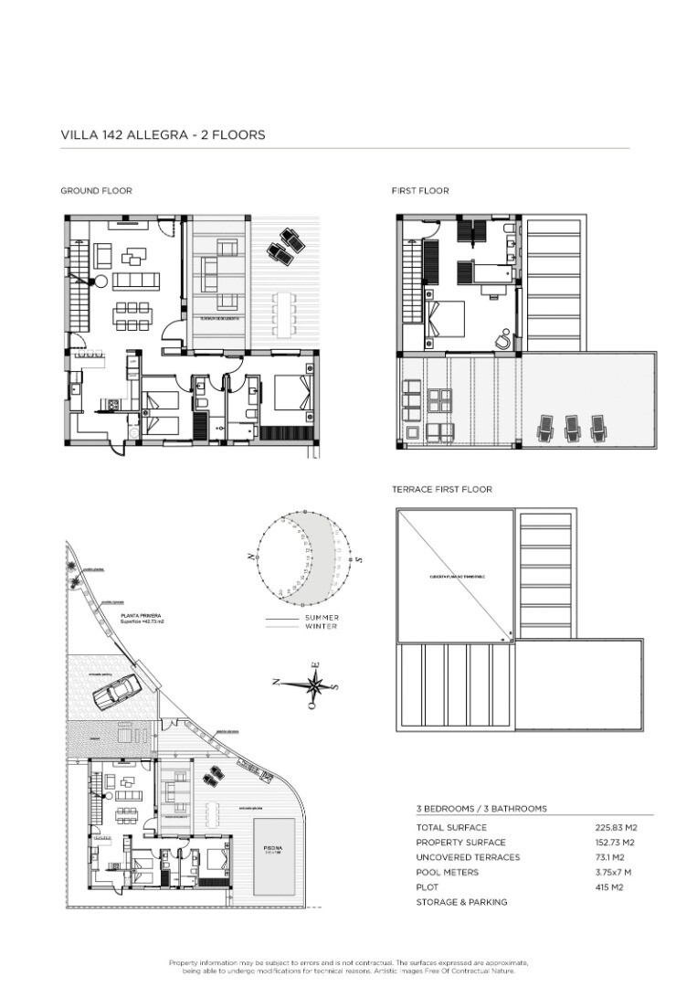
518 m2 de teren
m<sup>2</sup> proprietate
155 m2 proprietate
Dormitoare
3 Dormitoare
Băi
3 Băi
Distanța până la mare
Plajă la 8 km distanță
Garaj / Parcare
Garaj / Parcare
Terase
83 m² terasă
Piscină privată
Grădină
Dulapuri
Geam termopan

Descriere

Doriți mai multe informații? Mai puține informații
Piscina de 8x4m. Toate serviciile sunt la câțiva pași. Ciudad Quesada este o urbanizare mare din Rojales, care a devenit un sat fermecător, cu toate facilitățile majore și multe facilități de agrement. Locul are o locație frumoasă lângă terenul de golf La Marquesa. Pentru a vă bucura de frumoasele plaje din Guardamar del Segura, este nevoie de doar...

Locație

Rojales, Alicante
Sunteți interesat de această proprietate și doriți mai multe informații?

Simulați ipoteca dvs.

Prețul rămas nefinanțat
00,00 €
Costuri aproximative:
00,00 €
Total fonduri proprii
00,00 €
Ratele ipotecare
€/mes
Doriți mai multe informații?
Există 39 persoane care vizualizează această proprietate