Lăsați-vă fascinați de priveliștile incredibile de pe terasele acestor case din Polop. Aceste case spațioase vă invită să profitați de clima excepțională a Costa Blanca și pot fi personalizate pentru a se potrivi preferințelor dumneavoastră. Dimensiunile terasei sunt ideale pentru instalarea de mese, scaune, șezlonguri sau orice mobilier de exterio...r doriți.
Reședințele sunt proiectate pentru a vă bucura de aer liber, având nu doar terase, ci și grădini, verande și terase însorite în fiecare casă. În plus, majoritatea caselor din Polop oferă opțiunea de a adăuga o piscină privată (infinită sau puțin adâncă, în funcție de teren). Alternativ, cei care optează pentru o casă cu un singur etaj pot alege să instaleze un jacuzzi pe terasa însorită.
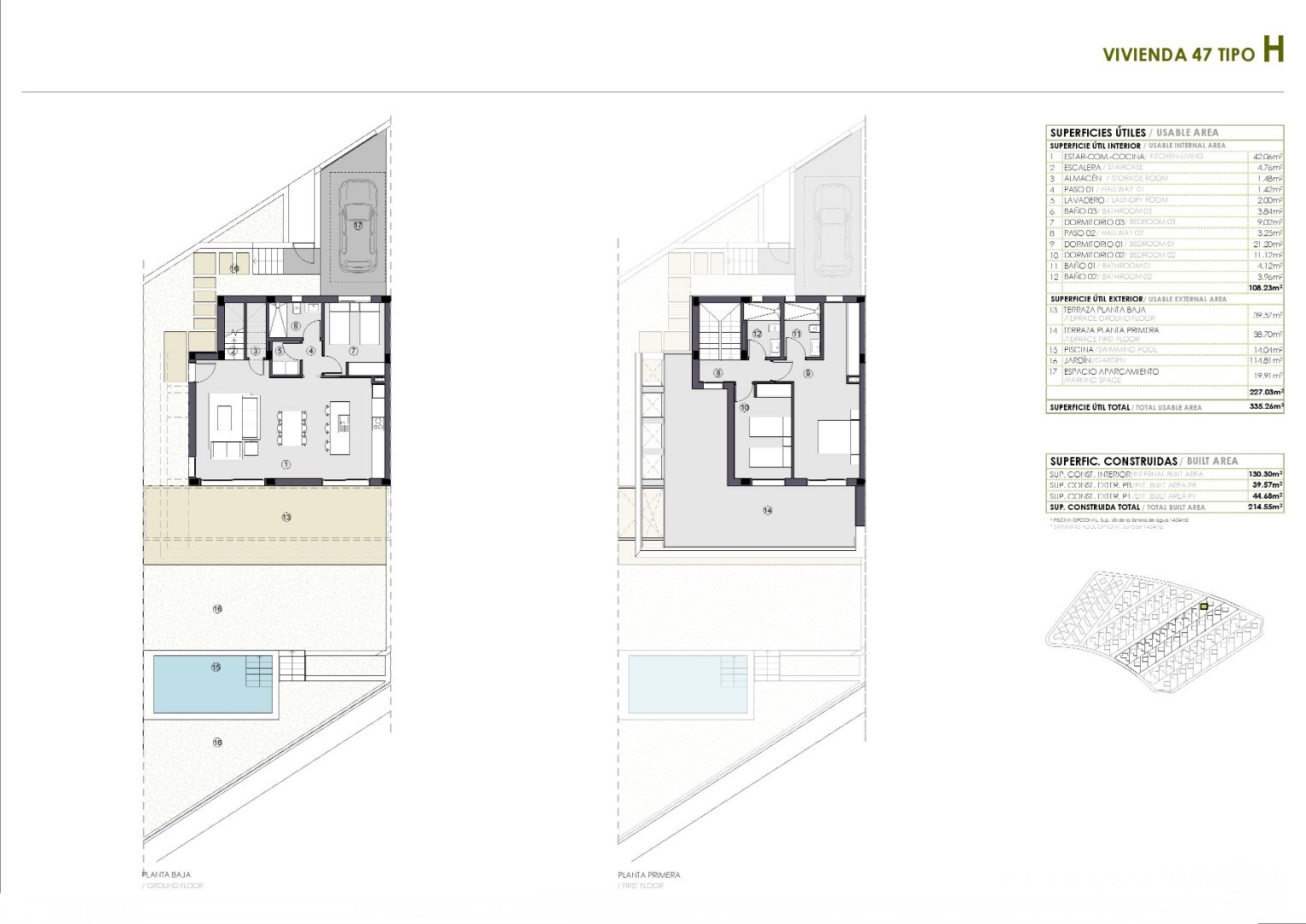
Dispunerea acestor case este concepută pentru a oferi confort în viața de zi cu zi, cu bucătării complet echipate, cu concept deschis, care includ blat, plită cu inducție, cuptor, hotă și chiuvetă. Băile sunt, de asemenea, complet echipate.
Toate unitățile includ un loc de parcare în preț.
Locația este luxoasă. La doar 5 minute de centrul orașului Polop de la Marina, un oraș fermecător care combină tradiția cu o gamă largă de servicii: restaurante, magazine, supermarketuri, bănci, medici și tot ce ai nevoie pentru viața de zi cu zi.