Vilă terasată de vânzare în Gran Alacant 280.000 € (AL04)

Bungalouri cu 1, 2 sau 3 dormitoare, cu 1 sau 2 băi. Alege cel mai bun aspect pentru casa ta și face-l perfect pentru familia ta. Piscina comunitara si aproape de toate serviciile.

280.000 €
Ref. AL04
Gran Alacant, Alicante Ver mapa

Caracteristici de bază

m<sup>2</sup> proprietate
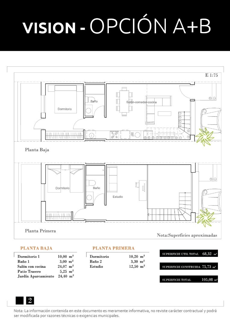
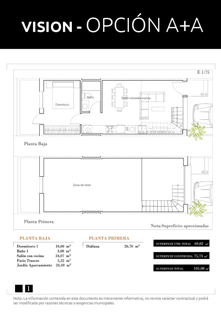
75 m2 proprietate
Dormitoare
2 Dormitoare
Băi
1 Băi
Distanța până la mare
Plajă la 3 km distanță
Piscină comunitară
Grădină
Dulapuri
Geam termopan

Descriere

Doriți mai multe informații? Mai puține informații
Vă prezentăm o casă, într-una dintre cele mai bune zone din Costa Blanca. Foarte aproape de Alicante și aeroportul său, plaja cu pavilion albastru, supermarketuri, baruri, restaurante și multe alte lucruri! Posibilitățile diferite de distribuție interioară oferă o mulțime de joc pentru orice nevoie de familii diferite și diferite. Cu o zonă comună ...

Locație

Gran Alacant, Alicante
Sunteți interesat de această proprietate și doriți mai multe informații?

Simulați ipoteca dvs.

Prețul rămas nefinanțat
00,00 €
Costuri aproximative:
00,00 €
Total fonduri proprii
00,00 €
Ratele ipotecare
€/mes
Doriți mai multe informații?
Există 42 persoane care vizualizează această proprietate