Apartament de vânzare în Villajoyosa (VILL10024)

Vândut

Apartament nou constructii langa plaja

Ref. VILL10024
Villajoyosa, Alicante Ver mapa

Caracteristici de bază

m<sup>2</sup> proprietate
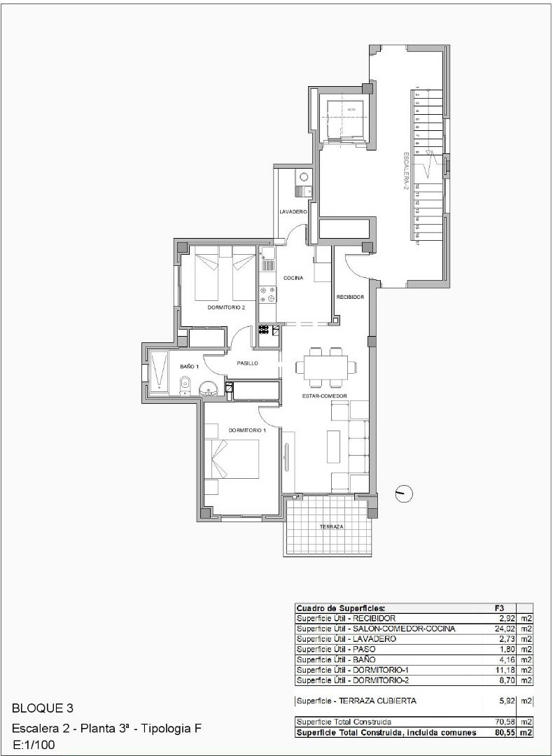
81 m2 proprietate
Dormitoare
2 Dormitoare
Băi
1 Băi
Garaj / Parcare
Garaj / Parcare
Terase
6 m² terasă
Piscină comunitară
Grădină
Lift
Spălătorie
Electrocasnice
Dulapuri
Geam termopan
Baie cu pardoseală încălzită

Descriere

Centru comercial la 950 de metri La 1,5 km de orașul vechi Villajoyosa 15 minute de Benidorm 35 de minute de aeroportul din Alicante

Locație

Villajoyosa, Alicante
Sunteți interesat de această proprietate și doriți mai multe informații?
Doriți mai multe informații?
Există 37 persoane care vizualizează această proprietate