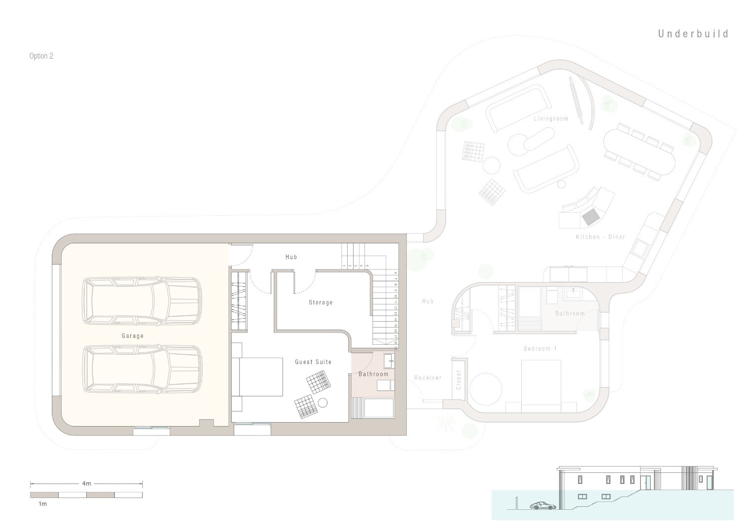
O vilă luxoasă de 330 m² cu un singur nivel, cu 4 dormitoare spațioase și 4 băi elegante. Cu curbe organice, interioare rafinate și o arhitectură impresionantă, această vilă se află pe un teren de 870 m² cu vedere panoramică, o piscină de 40 m² și un subsol spațios cu parcare pentru 2 sau mai multe mașini sau două mașini cu un dormitor și o baie su...plimentare. Situată în prestigiosul complex rezidențial La Marina, cu vedere la vale, înconjurată de natură, păduri de pini și râul Rio Segura. La doar câteva minute de magazine, trasee de drumeție și 7 plaje cu Steag Albastru - perfectă pentru iubitorii de lux, natură și liniște mediteraneană.
Urbanizarea La Marina, situată pe Costa Blanca, oferă o combinație perfectă de facilități și apropiere de coasta spaniolă. Este o comunitate internațională vibrantă, unde totul este la îndemână: de la supermarketuri și centre medicale până la baruri, restaurante și magazine animate. Deși complexul rezidențial în sine nu este situat direct pe mare, frumoasele și extinse plaje cu nisip din El Pinet și La Marina se află la mică distanță de mers cu mașina. Aceste plaje, înconjurate de dune protejate și păduri de pini, sunt ideale pentru plimbări lungi și relaxare pe malul apei. În apropiere, veți găsi și Parcul Natural Las Salinas, lacurile sărate, faimoase pentru flamingo și alte păsări migratoare. Acest lucru face din La Marina o bază ideală pentru cei care caută pacea și liniștea naturii fără a sacrifica facilitățile moderne și o atmosferă primitoare.
Aeroporturile din Alicante și Murcia sunt accesibile în 25 de minute pentru Alicante și, respectiv, o oră pentru Murcia.