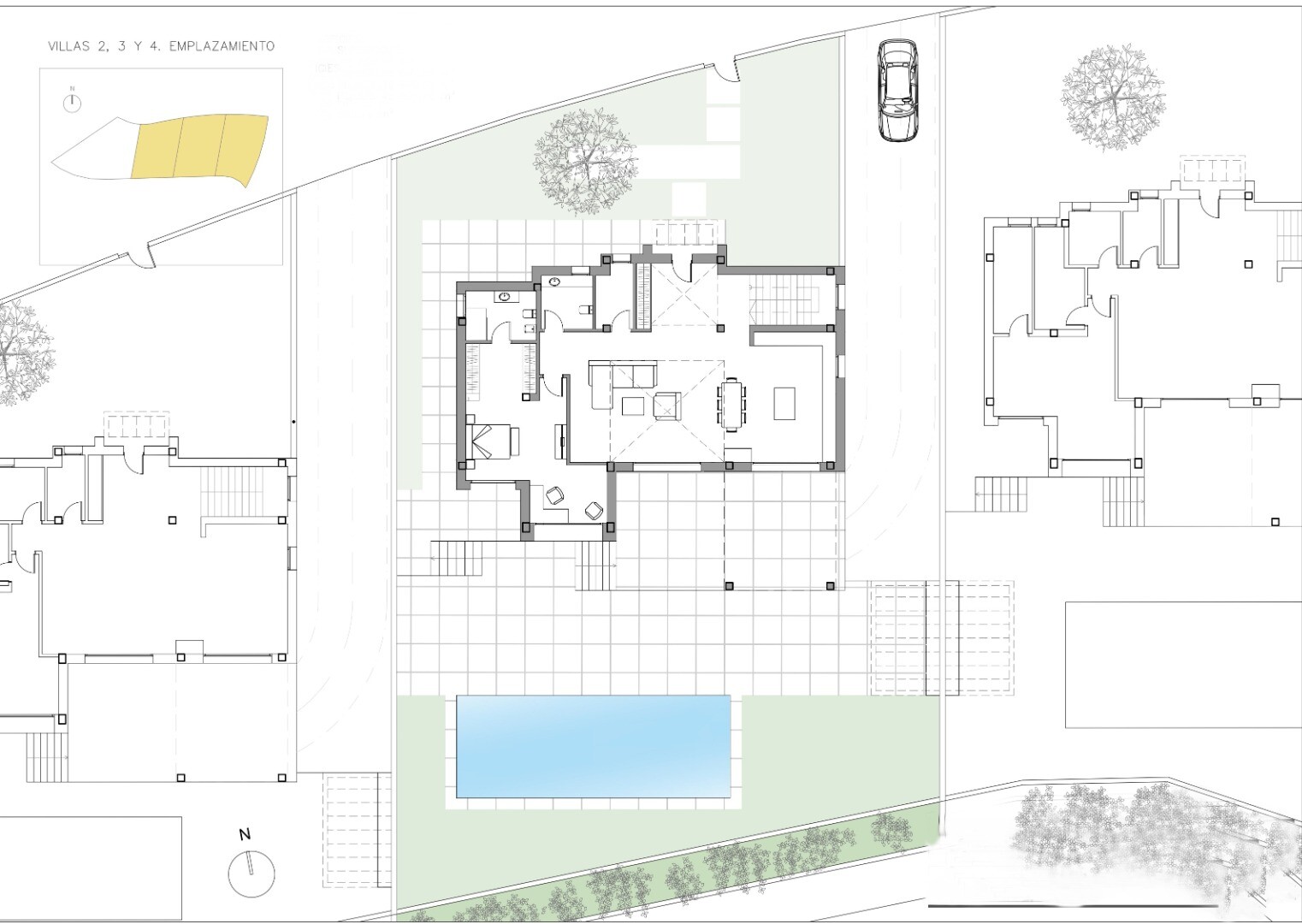
Vă prezentăm un nou proiect de trei vile în stil contemporan cu vedere la mare, situate în municipiul Finestrat (Alicante), înconjurate de peisaj montan și la doar 5 minute de mers cu mașina de Benidorm.
Materiale de înaltă calitate și acoperiri exclusive de designer sunt folosite în toate casele. Interiorul se simte spațios datorită tavanelor îna...lte și ferestrelor mari cu vedere la mare. Inaltimea podelei este de 2,80 m, iar in hol si living sunt spatii cu inaltime dubla.
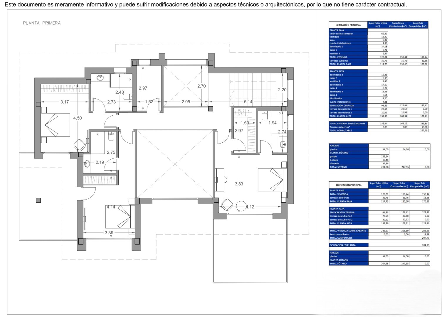
Suprafața construită a fiecărei vile este de peste 550 m², iar suprafața terenului este de aproximativ 900 m². Fiecare locuință are 300 m² la cele două etaje superioare și un etaj suplimentar de 200 m² la demisol folosit ca garaj.
Vilele au 4 dormitoare, 5 băi, 2 spălătorii și o zonă de living-sufragerie-bucătărie în plan deschis. În exterior, există o verandă acoperită, o piscină cu vedere la mare, zone mari de grădină și două terase la primul etaj.
Toate facilitățile sunt foarte eficiente. Eficiența energetică a casei este foarte mare. Fațada este realizată din blocuri Ytong. Lucrările din lemn și sticla au conductivitate termică scăzută. Sistemul de aer condiționat prin conducte include o pompă de căldură, încălzire prin pardoseală în toată casa, un sistem de ventilație cu reînnoire a aerului și un sistem de recuperare a căldurii. Intreaga locuinta dispune de iluminat LED, atat interior cat si exterior.
În plus, viitorul proprietar își poate personaliza locuința cu dotări suplimentare.