Vă prezentăm Villa Alba, o vilă exclusivistă cu design contemporan, situată într-un complex rezidențial în Altea, pe coasta de nord a Costa Blanca, foarte căutată.
Concepută pentru cumpărătorii exigenți care apreciază arhitectura modernă, intimitatea și priveliștile spectaculoase la Marea Mediterană, această proprietate elegantă oferă echilibrul p...erfect între confort, stil și funcționalitate.
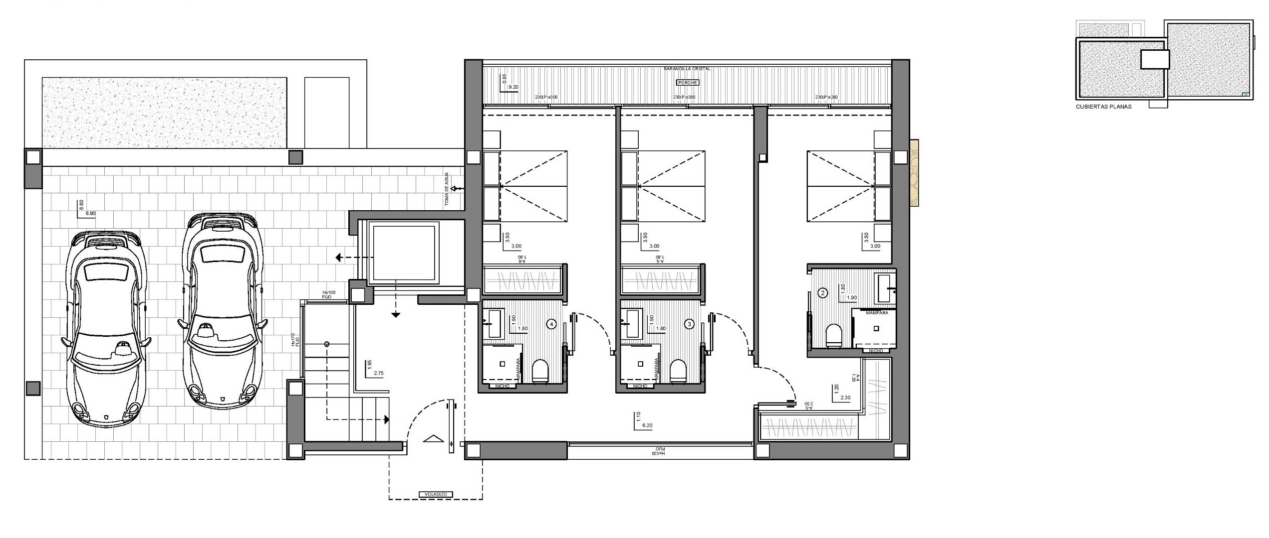
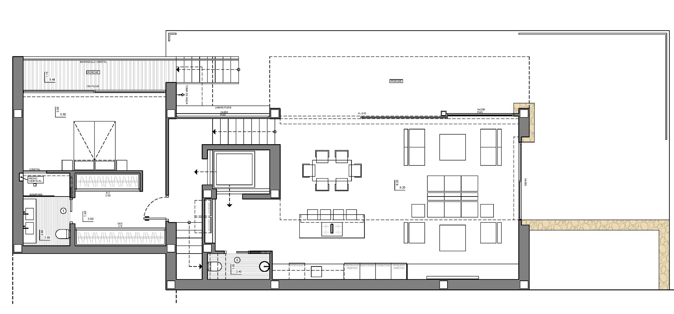
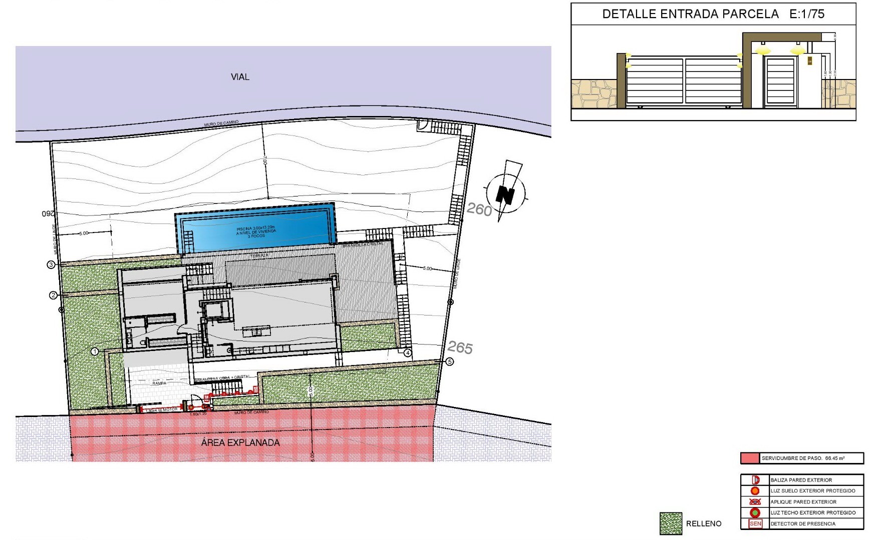
Vila este distribuită pe două niveluri atent proiectate și dispune de patru dormitoare spațioase, fiecare cu baie proprie, un living și o zonă de luat masa luminoase, open space, cu o bucătărie contemporană complet integrată, și o terasă principală uimitoare cu piscină infinită, îmbinând perfect viața interioară și exterioară cu vederi panoramice la mare.
Toate spațiile principale de locuit sunt orientate spre sud-est, spre mare, și se bucură de acces direct la terasele exterioare, maximizând lumina naturală și conexiunea cu împrejurimile mediteraneene.
Proprietatea include, de asemenea, un garaj acoperit pentru două vehicule, cu preinstalare pentru un punct de încărcare pentru vehicule electrice, împreună cu climatizare aerotermală, sistem de automatizare a locuinței și panouri solare, asigurând o eficiență energetică ridicată, sustenabilitate și confort pe tot parcursul anului.
Esența vieții mediteraneene
Altea este unul dintre cele mai fermecătoare orașe de pe Costa Blanca, renumit pentru orașul său vechi pitoresc, cu străzi pietruite și fațade văruite cu vedere la Marea Mediterană.
Mai mult decât o simplă destinație, Altea reprezintă un stil de viață. Aici, locuitorii se bucură de o combinație unică de mare, natură, gastronomie și cultură la superlativ.
Casele sale albe emblematice și biserica cu cupolă albastră, recunoscută la nivel internațional - un simbol al orașului - sunt doar începutul frumuseții care o așteaptă după fiecare colț. De la plimbări liniștite pe coastă la restaurante locale vibrante, galerii de artă și piețe tradiționale, Altea oferă o experiență mediteraneană autentică pe tot parcursul anului.